Dr. med. dent. Sebastian Bolt, Zuzwil SG
Auftraggeber: Dr. med. dent. Sebastian Bolt, Zuzwil SG
Realisierung: 2025
Auftragsart: Direktauftrag
Auftragsart: Direktauftrag
Innenarchitektur: Marcel und Noëlle Baechler
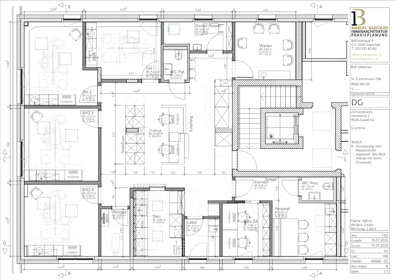
Zahnarztpraxis Zuzwil – skandinavisch inspiriert, modern gestaltet
In Zuzwil durften wir eine Zahnarztpraxis im 4. Obergeschoss gestalten, die zeigt, wie durchdachte Innenarchitektur den Charakter eines medizinischen Ortes neu definieren kann. Unser Ziel war es, Funktionalität und Wohlbefinden in eine klare, natürliche Raumkomposition zu übersetzen.
Material und Farbe
Das Gestaltungskonzept basiert auf einer hellen, warmen Materialwelt. Ein Vinyl Eichenboden mit Synchronporenstruktur vermittelt Natürlichkeit, während matte Oberflächen in sanften Grüntönen für visuelle Ruhe sorgen. Möbel, Wandverkleidungen und Einbauten sind farblich aufeinander abgestimmt und bilden ein harmonisches, ruhiges Gesamtbild.
Licht und Atmosphäre
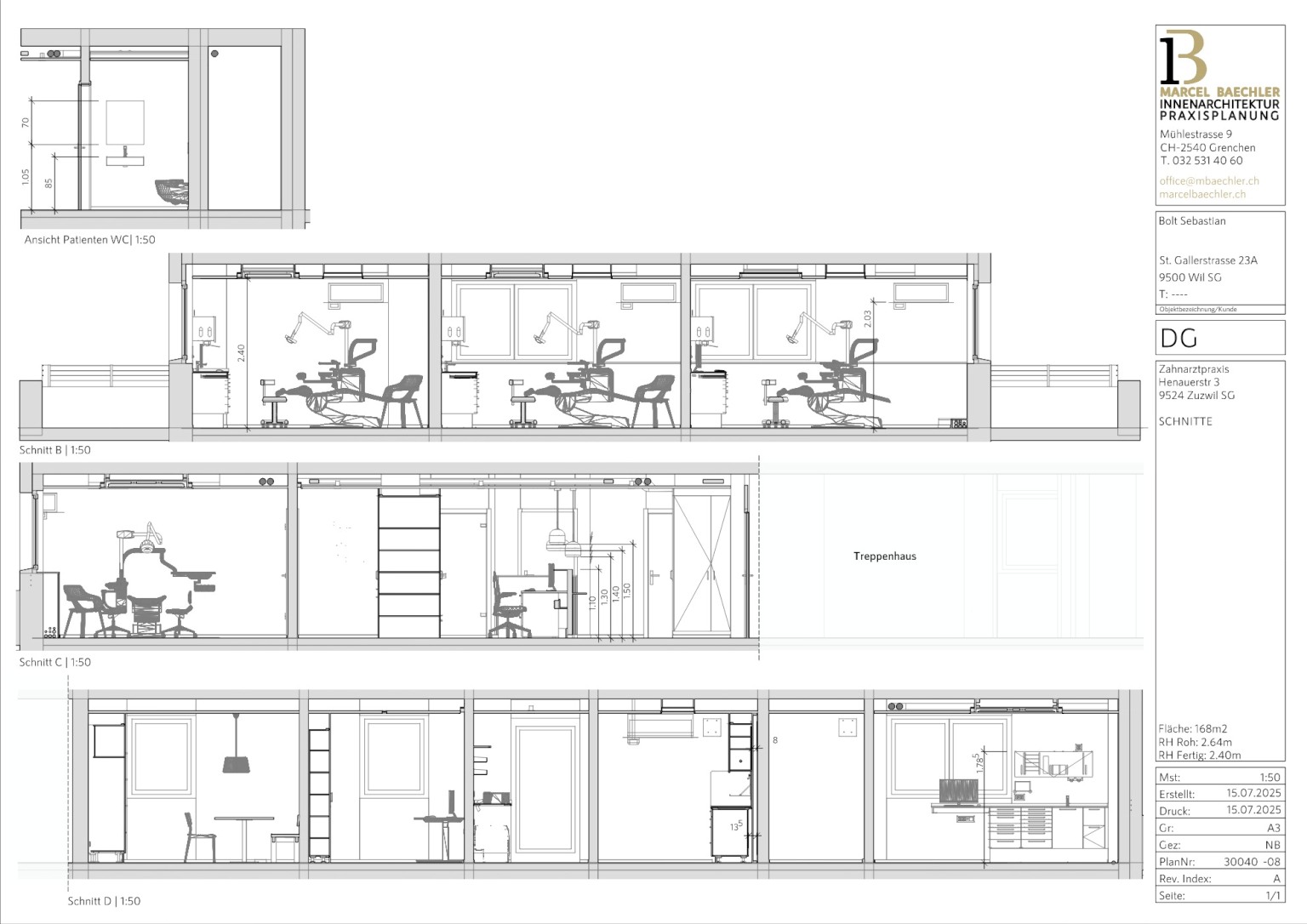
Die Lichtplanung spielt eine zentrale Rolle. Indirekte LED-Linien an den Deckenrändern sorgen für eine weiche, blendfreie Grundbeleuchtung. Ergänzt werden sie durch Pendelleuchten mit transluzenten Glaskörpern, die warme Lichtinseln im Wartebereich schaffen. In den Behandlungsräumen garantieren grossflächige, dimmbare Deckenpaneele eine gleichmässige Ausleuchtung und ermöglichen eine Anpassung der Farbtemperatur für angenehmes Arbeiten.
Raumstruktur und Ergonomie
Die Raumorganisation folgt klaren Abläufen. Vom Empfang über den Wartebereich bis zu den Behandlungszimmern entstehen kurze Wege und intuitive Orientierung. Der schwebend wirkende Empfangstresen mit LED-Sockellicht wirkt leicht und einladend. Ergonomische Sitzmöbel mit klarer Linienführung bieten Komfort, ohne den Raum zu überladen.
Details mit Wirkung
Bewusst gesetzte Akzente – Pflanzen, Trockenblumen, Glasobjekte – unterstreichen die natürliche Anmutung und verleihen der Zahnarztpraxis Persönlichkeit. Die reduzierte Formensprache sorgt für Ruhe und Konzentration – Qualitäten, die in einer medizinischen Umgebung essenziell sind.
Planung
Wir waren verantwortlich für die Innenarchitektur, Visualisierung, Baueingabe sowie Elektro-, Sanitär- und Ausführungsplanung.
Zudem übernahmen wir die gesamte Signaletik mit Gestaltung des Logos.
Visualisierung | Realitätsfoto (Schieber nach Links und Rechts bewegen)
